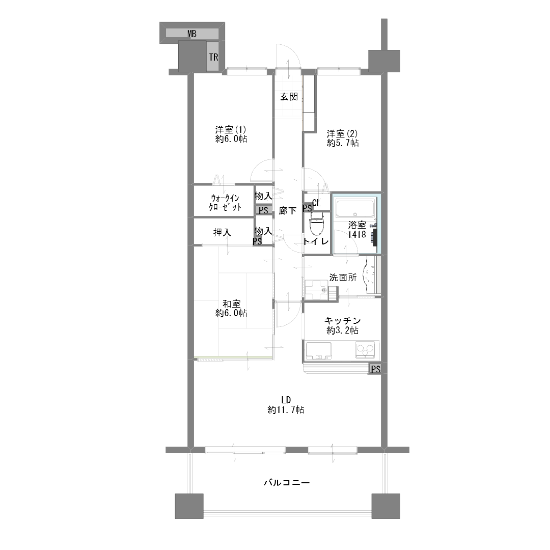
間取りはこちら




間取りは基本的には変えていませんが、キッチンと洗面所の間の壁を洗面所側に少しずらしています。
カップボードが置ける奥行にするための変更です。




赤茶色から明るい色柄のフローリングになったことで明るく見えます。
キッチンは吊戸棚を無くし、視線が通るように下がり壁を撤去しました。




キッチン側から見た様子です。
タカラスタンダード製のこちらのキッチンは、壁パネルも扉・収納内部もホーロー製です。傷や汚れに強いことと、マグネットがくっつくのでお好みのマグネット収納を取り付けることができて便利です。

今回新たに食洗機を設置して家事の効率もアップできます。食洗機がシンク下にあるのもポイントです。シンクで予洗いをして、食器の水滴が床に落ちることなく食洗機に入れることができる仕様になっています。




キッチンと洗面所の間の壁をずらしました。
以前は奥行きが狭くコンパクトなキッチン収納しか置けませんでしたが、一般的なサイズのカップボードが置けるようになりました。




洗面所側から見るとこんな感じです。
廊下側からの入口の引戸を交換し、洗濯機横の収納も作り変えています。




床はフロアタイルを貼りました。
大理石調の大判(609mm角)のものなので高級感が出ます。




洗面化粧台はLIXIL製品で、間口いっぱいにまとめて収納できる引出し収納にしました。
水栓金具は壁出しタイプでお手入れしやすく、タッチレスのため蛇口を汚すことなく使うことができます。




ユニットバスもタカラスタンダード製です。
高級感のあるホーロー壁パネルと、磁器タイル床が特徴です。




トイレは手洗いなしのウォシュレット付きのものに交換しました。
床は洗面所と同じものを採用していて統一感がありますね。




洋室はブルーグリーンのアクセントクロスを貼って爽やかな印象になりました。
窓からの冷気を気にされていたので、内窓を設置しました。冬は冷気を遮断し暖かく、夏は涼しく過ごすことができます。防音効果もあるので、共用廊下に面した窓にはいくつものメリットがあります。

リビングにも内窓を設置しました。ナチュラルな木目の内窓なので、木製サッシのように見えてお部屋の雰囲気に合っています。

リビング横の和室は、一般的な畳から半畳のカラー畳に交換しました。
樹脂製の畳表なので汚れてもお手入れがしやすく、お子様やペットとお住まいの方におすすめです。