この家は、平成11年に新築された木造2階建ての中古戸建。
これまでの歴史を大切にしつつ、大規模なリノベーションを施すことで、現代のライフスタイルに合わせた快適な空間へと生まれ変わりました 。

一歩家の中へ入ると、室内も全面的に改修されており、新築のように清々しい雰囲気が迎えてくれます。

特に注目すべきは、最新の設備への一新です。キッチンはシステムキッチンに交換され、浄水器や食洗機が新たに備え付けられました 。お料理の時間をより楽しく、後片付けを楽にしてくれるでしょう。浴室もユニットバスに交換され、追い焚き機能と浴室乾燥機が付いているので、いつでも快適なバスタイムを楽しめます 。

さらに、洗面台、トイレ、給湯器も新しいものに交換済みです 。
床のフローリングや壁のクロスもすべて張り替えられ、建具や下駄箱も一新されています 。

細部にまでこだわったリノベーションによって、日々の生活がより快適になることでしょう。

東京・板橋区徳丸。
活気に満ちた商店街と、穏やかな住宅地が心地よく調和するこの街に、家族の新しい物語を紡ぐのにふさわしい住まいが。
東武東上線「東武練馬」駅から歩いてわずか12分という便利な立地でありながら、喧騒から一歩離れた閑静な場所に位置しています。
利便性と落ち着きを兼ね備えたこの場所で、心豊かな暮らしを始めてみませんか。
まず、日々の暮らしに寄り添う便利な施設に囲まれています。
最寄りのスーパー「リコス」へは、徒歩約2分の距離。仕事帰りや急な買い物にも、さっと立ち寄れるのが嬉しいですね 。
週末には、徒歩約5分にある「イオン板橋ショッピングセンター」で、ショッピングや食事を楽しめます 。
広々とした店内には、食料品からファッション、雑貨まで多彩なショップが集まっており、家族みんなで一日中楽しめます 。
また、子育て世帯にも安心の環境が整っています。
徒歩圏内には「区立徳丸小学校」があり、通学も安心 。
徒歩約7分には「区立西台図書館」、徒歩約13分には広大な敷地を誇る「都立赤塚公園」があり、お子様とのびのびと過ごすことができます 。休日に自然の中でリフレッシュしたり、読書に没頭したりと、家族それぞれの時間を大切にできる環境です。
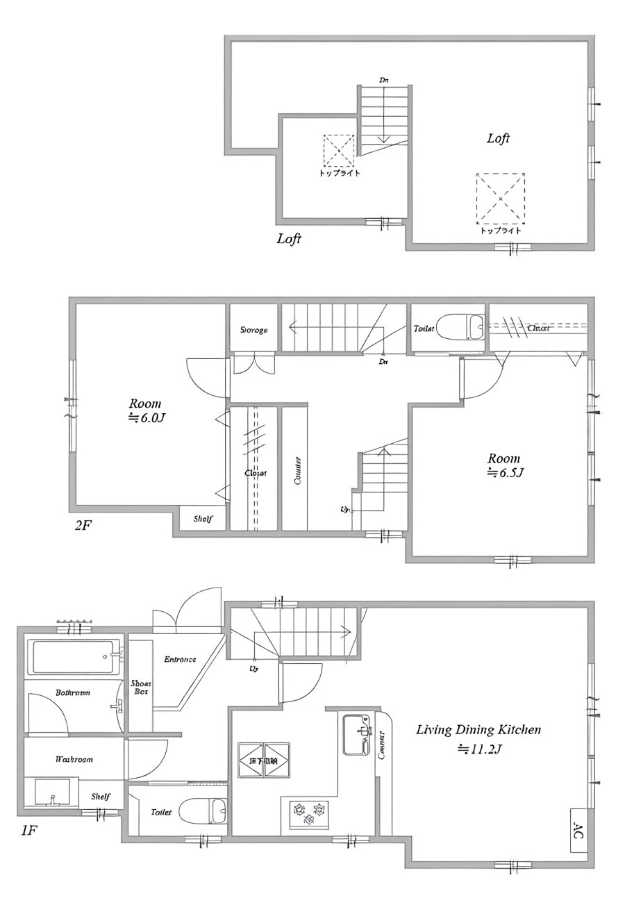
この家の魅力は、随所に散りばめられた工夫にあります。延床面積77.83㎡、土地面積83.81㎡の広さで、家族のプライベートも大切にできる間取りです 。
1階には11.25畳のリビング・ダイニング・キッチンがあり、家族が集い、語らうのに十分な広さがあります 。陽の光が優しく差し込む空間で、ゆったりとくつろげます。
2階には、ロフトやフリースペースといった個性的な空間が設けられています 。ロフトは、趣味の部屋や書斎、あるいは遊び心のある隠れ家として、様々な使い方が可能です 。フリースペースは、ライフスタイルの変化に合わせてフレキシブルに利用できる多目的空間。テレワーク用のスペースにしたり、お子様の遊び場にしたりと、家族の成長とともにその役割を変えていけるのが魅力です 。
この家は、ただ住むだけの場所ではありません。
これから始まる新しい暮らしを、より豊かに、より自分たちらしくしてくれる可能性に満ちた場所です。リノベーションによって生まれ変わった美しい住まいで、新たな思い出を重ねていきませんか。
本物のカフェです
さがつく craft&cafe
私たちが運営する本物のカフェです。コーヒーを飲みながら、
住まいのことを気軽に話せる場所として作りました。
営業トークは一切なし。思いついたことを、ぽろっと話してみてください。
資料請求・お問い合わせ
お問い合わせ物件
徳丸1丁目戸建て(「住まう」を豊かに)